Mon compte GRATUIT
Partager

Appartement à vendre Aveiro Portugal (3800) 88 m2 - 472500 €

vente appartement 88 m² 2 chambres région Aveiro

472 500 €


  • Photos
  • Localisation
Vente Appartement AVEIRO 3800
Vente Appartement AVEIRO 3800Annonce Vente Appartement AVEIROAcheter Appartement 88 m2 AVEIROAcheter Appartement AVEIRO région AVEIROvoir plus de photos

Description Appartement Aveiro

AVEIRO : Appartement 2 chambres à Barrocas dans un immeuble neuf haut de gamme !
L'excellence de la construction alliée à l'excellence de son emplacement donnent naissance à un produit immobilier haut de gamme unique et exceptionnel, gage d'un investissement à forte valeur patrimoniale.
Barrocas est un quartier résidentiel très calme et accueillant, facilement accessible depuis tous les services, le coeur de la ville et les principaux axes routiers.
L'appartement fait partie d'un immeuble moderne et spacieux, caractérisé par de grands balcons baignés de lumière naturelle, offrant un espace de détente supplémentaire et une vue imprenable sur la Ria de Aveiro et l'emblématique canal de São Roque, à l'ouest. Proposant des appartements allant du T2 au T4, il est construit avec des matériaux haut de gamme et présente une architecture moderne privilégiant le bien-être et la sécurité de ses résidents. Idéal pour ceux qui recherchent confort, raffinement et qualité de vie.
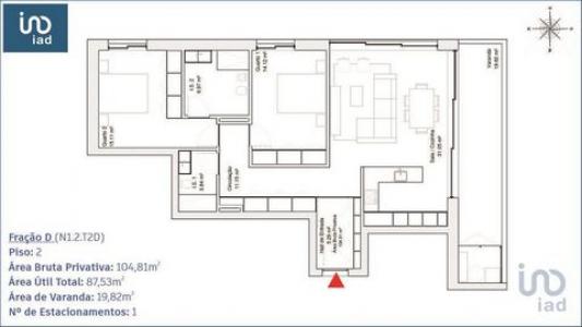
Consultez le plan ci-joint pour plus de détails et contactez-nous pour plus d'informations, notamment sur les options disponibles, les délais de livraison et les détails de construction et d'équipement.

QUELQUES DÉTAILS DE CONSTRUCTION :
STRUCTURE
Sol renforcé par des pieux pour assurer la stabilité et la sécurité.
Sols en béton armé.
Structure parasismique en béton armé, conçue selon les dernières normes nationales et européennes.
ESPACES COMMUNS
Façade ventilée avec isolation en laine minérale et revêtement en grès cérame de haute qualité.
Hall d'entrée entièrement décoré, offrant un accueil élégant.
Armoires techniques en placage bois, alliant fonctionnalité et design.
Pièces communes multifonctionnelles pour diverses activités sociales.
Ascenseurs à haute efficacité énergétique, garantissant confort et économies.
Zones de circulation avec revêtement de sol composite et carrelage en grès cérame de haute qualité.
Garages avec revêtement en résine époxy et possibilité d'installation de bornes de recharge individuelles.
FINITIONS
Châssis minimalistes à rupture de pont thermique, garantissant une efficacité énergétique optimale.
Vitrages avec contrôle des apports solaires et protection occultante interne. Revêtement de sol en vinyle de haute qualité, exempt de substances volatiles, conforme aux normes environnementales européennes.
Salle de bains revêtue de matériaux composites de haute qualité ou de grès cérame.
Sanitaires suspendus « Roca » avec plans de travail amortis


  • Chambres2
  • Sbds2
  • Surface88 m2

Contact

Informations complémentaires



• Prix : 472500 €, soit 5370 €/m²

Annonce n°549414 publiée le 06/09/2025
Stats résumé : 428 - Stats Détail : 89
Voir les prix de l'immobilier au m2 sur région AVEIRO

Contacter le propriétaire


Recevoir des annonces similaires

Vente à proximité de Aveiro

Signaler un abus : vous remarquez une annonce non conforme à sa description ou suspecte, signalez-le nous...