Description Terrain Vagos
VAGOS : Terrain à bâtir - Choca do Mar, Calvão - Vagos
Belle opportunité de construire la maison de vos rêves dans un quartier calme, avec un bon ensoleillement et des accès faciles !
Localisation : Calvão, Vagos
Surface totale : 1 300 m²
Façade : 16 mètres
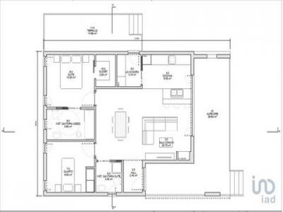
Viabilité pour construction type 2
Projet précédemment approuvé par la mairie de Vagos
Le délai de démarrage étant expiré, un nouveau permis est requis
Distances approximatives :
- Praia de Mira - 13 km
- Praia do Areão - 13 km
- Vagos - 9 km
- Aveiro - 24 km
- Accès à l'A17 - 3 km
Points forts :
- Quartier résidentiel calme
- Très bonne exposition solaire
- Partenariat avec un cabinet d'architecture pour vous accompagner
- Bonne accessibilité aux grands axes
À propos de moi :
En tant que conseiller indépendant chez IAD Portugal, ma mission est de trouver les meilleures solutions pour mes clients, qu'ils soient vendeurs ou acheteurs.
Je travaille avec un vaste réseau de partenaires et spécialistes, garantissant un service complet et sécurisé. Je collabore également avec d'autres agences et conseillers agréés.
Je suis disponible pour vous accompagner à chaque étape du processus immobilier, avec sérénité, confiance et professionnalisme.
N'hésitez pas à me contacter pour plus d'informations ou pour organiser une visite.
#ref: 141157
- Terrain1300 m2
- Surface1300 m2





