recherche immobilières au Portugal sur mobile

Appartement à vendre Estarreja Portugal (3860) 100 m2 - 300000 €

vente appartement 100 m² 2 chambres district Aveiro

300 000 €


Vente Appartement ESTARREJA 3860
Annonce Vente Appartement Estarreja
Acheter Appartement 100 m2 Estarreja
Acheter Appartement Estarreja région AVEIRO

Description

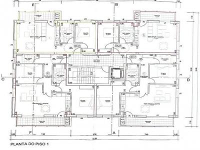
ESTARREJA : Nous vous présentons ce élégant appartement de 2 chambres en cours de construction, situé à Avanca, dans un environnement calme et en pleine valorisation, idéal pour ceux qui recherchent une excellente qualité de vie avec un accès facile aux principaux axes. Avec une surface totale de 100,60 m², ce bien se distingue par son agencement fonctionnel et sa belle luminosité naturelle. L'espace de vie se compose d'un grand séjour avec cuisine ouverte (environ 31 m²), offrant un cadre moderne et convivial, parfait pour le quotidien comme pour recevoir. La cuisine, bien agencée, donne accès à un balcon d'environ 9,50 m², idéal pour profiter de moments en extérieur. L'espace nuit comprend : Deux chambres de bonnes dimensions, dont une plus spacieuse (environ 19 m²), idéale comme chambre principale Deux salles de bains complètes, assurant confort et praticité Un hall de distribution permettant une séparation harmonieuse entre les espaces jour et nuit L'appartement s'inscrit dans un immeuble contemporain, conçu pour offrir confort, efficacité et qualité de construction. Livraison prévue : Été 2027 #ref: 159549
Retour
Autres photos
Plan
Favoris

Contacter le propriétaire


Recevoir des annonces similaires

Vente à proximité de Estarreja