recherche immobilières au Portugal sur mobile

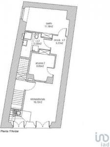
Appartement à vendre Lisboa SANTA-MARIA-MAIOR 2 pièces Portugal (1100) 43 m2 - 357000 €

vente appartement 2 pièces 43 m² 2 chambres district Lisboa secteur SANTA-MARIA-MAIOR

357 000 €


Vente Appartement 2 pièces LISBOA 1100
Annonce Vente 2 pièces Appartement Lisboa
Acheter Appartement 43 m2 Lisboa
Acheter Appartement Lisboa région LISBOA

Description

Retour
Autres photos
Plan
Favoris

Contacter le propriétaire


Recevoir des annonces similaires

Vente à proximité de Lisboa