recherche immobilières au Portugal sur mobile

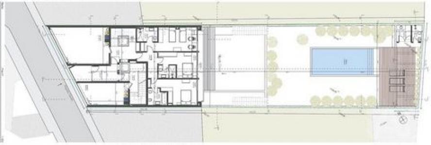
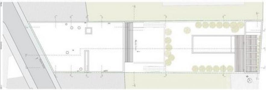
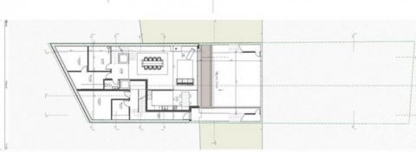
Terrain à vendre Porto PARANHOS Portugal (4200) 530 m2 - 725000 €

vente terrain 530 m² district Porto secteur PARANHOS

725 000 €


Vente Terrain PORTO 4200
Annonce Vente Terrain Porto
Acheter Terrain 530 m2 Porto
Acheter Terrain Porto région PORTO

Description

Retour
Autres photos
Plan
Favoris

Contacter le propriétaire


Recevoir des annonces similaires

Vente à proximité de Porto